Tolle moderne 3-Zi-Whg! Balkon, Fahrstuhl, Einbauküche, Einzelstellplatz in Stadt- und Waldrandnähe

65193 Wiesbaden, Wohnung zum Kauf

Referenz

Dieses Objekt wurde bereits erfolgreich vermittelt.

Objekt­beschreibung

Beschreibung

Auf einem großzügigen, sehr schön angelegten Privatgrundstück wurden 1996 drei architektonisch attraktive baugleiche Häuser, mit je zehn Wohneinheiten errichtet.

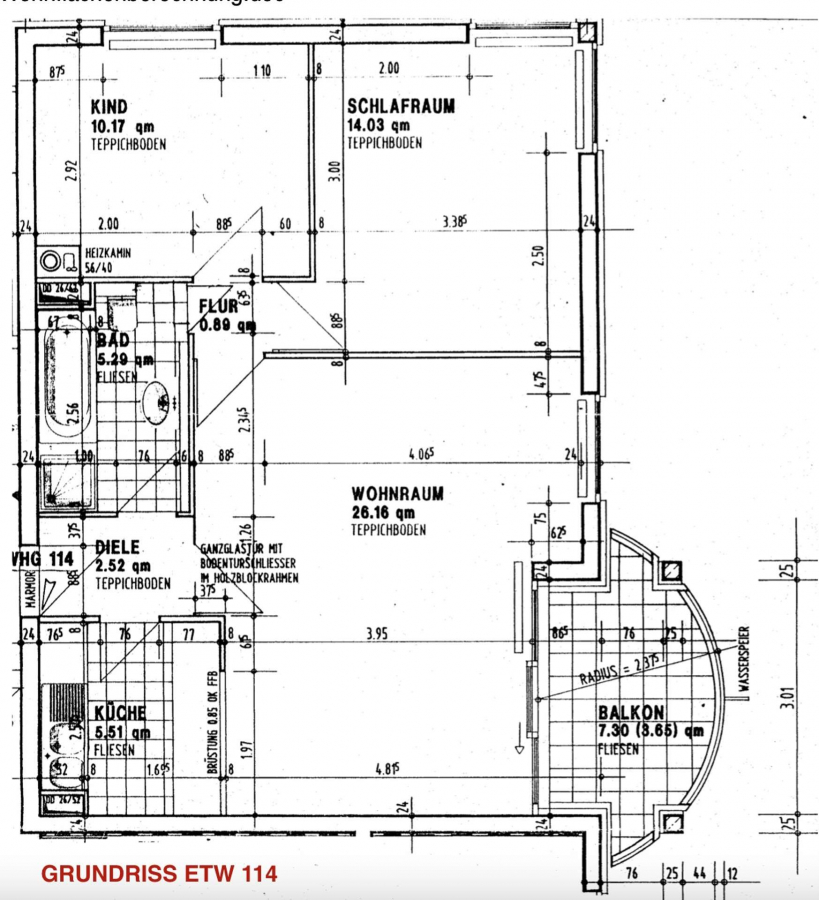
Diese schöne und lichtdurchflutete ca. 68,22 m² große Eigentumswohnung befindet sich im 1. Obergeschoss, in einer überaus gepflegten, großteils von Eigentümern bewohnten, ruhig gelegenen Wohneinheit. Die hervorragende Lage in Waldrandnähe und doch stadtnah, lädt zu zahlreichen Freizeitaktivitäten ein.

Schon beim Betreten dieser modernen, hellen Wohnung mit bodentiefen Fenstern fühlt man sich einfach nur wohl. Die Wohnung verfügt über einen kleinen Flur mit deckenhohen Glastürelementen, von dem man in den geräumigen Wohn- Essbereich mit einer angrenzenden halboffen gestalteten Küche inclusive einer Küchenbar gelangt. Ein toller überdachter Balkon, mit einer Größe von ca. 7,30 m² ist vom Wohnzimmer begehbar. Zwei weitere Schlafzimmer sind durch einen kleinen Flur vom Wohnbereich abgegrenzt.
Das Bad verfügt über eine Badewanne. Ein Waschmaschinenanschluss ist vorhanden.
Im Untergeschoss befindet sich ein gepflegter Kellerabteil mit ca. 8 m², der dieser Wohnung zugeteilt ist.

Ein besonderes Highlight stellt der großzügige und leicht befahrbare Premium- Einzelstellplatz in der Tiefgarage dar, der sich direkt gegenüber den Einfahrt befindet. Im Übrigen handelt es sich in dieser Tiefgarage um Duplexstellplätze.

Die Wohnung ist vermietet. Der Mieter möchte gerne in dieser Wohnung wohnen bleiben. Die Nettomieteinnahmen betragen 9.300,- EUR im Jahr, zzgl. 200,- EUR Nebenkostenvorauszahlung im Monat.

Alle drei Dächer werden in dieser Wohnanlage in den nächsten Monaten erneuert. Es fällt eine Sonderumlage von 14.000,- Euro an, die noch vom jetzigen Eigentümer übernommen wird.

Die WEG besteht insgesamt aus 30 Parteien.

HAUSGELD UND RÜCKLAGEN:

Das monatliche Hausgeld ab 1.1.2024 beträgt 339,00 Euro, wovon 46,41 Euro in die Rücklagenbildung fließen. 208,10 Euro sind auf den Mieter umzulegen.

Das Hausgeld für den Einzelstellplatz beträgt zusätzlich 32,00 Euro im Monat, wovon 11,59 Euro in die Rücklagenbildung fließen. (Gemäß Wirtschaftsplan 2024)

Vorhandene Rücklagen zum 31.12.2022 betragen insgesamt für die WEG Wohnungen 55.341,83 Euro und für Stellplätze in der Tiefgarage 22.710,34 Euro
Anteilige Rücklagen für diese Wohnung Nr. 114 zum 31.12.2022: 1.543,- Euro

Anteilige Rücklagen Tiefgarage Stellplatz Nr. 34 zum 31.12.2022: 677,- Euro

Um die Privatsphäre des Mieters zu schützen, konnte die Wohnung nicht aus allen Perspektiven fotografiert werden. Wir bitten um Ihr Verständnis.

Ausstattung

DIE AUSSTATTUNG IM ÜBERBLICK

  • großer, heller Wohn- Essbereich mit Zugang zum Balkon
  • offen gestaltete Küche mit Bar zum Essbereich inkl. Einbauküche
  • schöner Balkon mit ca. 7,30 m²
  • zwei Schlafzimmer zur individuellen Nutzung (Homeoffice etc.)
  • ein Bad mit Badewanne und Waschmaschinenanschluss, hell gefliest
  • moderne deckenhohe Glastür zum Wohn- Essbereich

weiße Zimmertüren mit Schattenfuge

  • weiße bodentiefe doppelverglaste, isolierte Kunststofffenster
  • an allen Fenstern befinden sich Rollläden
  • elektrische Rollläden im Wohn-Essbereich
  • Fahrstuhl
  • großer Einzelstellplatz Stellplatz in der Tiefgarage
  • großzügiger Kellerabteil
  • Fahrradkeller durch die Tiefgarage begehbar
  • eigener Platz für einen Wäschetrockner in der Waschküche, optional kann auf

eigene Kosten ein Waschmaschinenanschluss verlegt werden

Sonstiges

Lassen Sie sich bei einer persönlichen Besichtigung von dieser Immobilie inspirieren!

Die Höhe der Maklerprovision richtet sich nach den am 23.12.2020 in Kraft getretenen gesetzlichen Regelungen, zur Teilung der Provision.

Der Käufer zahlt nach Abschluss des notariellen Kaufvertrags an die Firma S. Siemens Immobilien eine Außenprovision von 2,975 % inkl. der derzeit geltenden MwSt.

Die Verkäuferseite zahlt an S. Siemens Immobilien im Innenverhältnis eine Verkäuferprovision in Höhe von 2,975 % des Kaufpreises inkl. der derzeit geltenden MwSt.

Die notariellen Beurkundungskosten und die Grunderwerbssteuer werden von der Käuferseite getragen.

Alle Angaben in diesem Exposé wurden sorgfältig und so vollständig wie möglich gemacht. Soweit die Grundrissgrafiken Maßangaben und Einrichtungen enthalten, wird auch für diese jegliche Haftung ausgeschlossen. Ebenso weisen wir darauf hin, dass die Grundrissgrafiken nicht immer maßstabgetreu sind.
Die Angaben beruhen auf Aussagen der Eigentümer oder deren Auskunftsbefugten. Für die Richtigkeit übernehmen wir keine Gewähr!

Lage

Das Objekt befindet sich in einer sehr guten, überaus beliebten und ruhigen Wohnlage, umgeben von einer perfekten Infrastruktur.

In nur wenigen Gehminuten befinden Sie sich im Wiesbadener Stadtwald, der zu vielen
Freizeitaktivitäten einlädt. Das wunderschöne Wiesbadener Nerotal, mit der angrenzenden Taunusstraße und ihren vielen gastronomischen Angeboten ist ebenso zu Fuß zu erreichen.

Der Büro- und Medienpark und Campus "Unter den Eichen“ befindet sich nur 300 Meter entfernt von dieser Wohnung.
Diverse Supermärkte sowie ein Bäcker sind ebenso in wenigen Minuten erreichbar.

Auch für die Anbindung an die ÖPNV ist gesorgt. Eine Bushaltestelle befindet sich in direkter Nähe zum Objekt. Von dort fahren die Buslinien 3 und 6 ab.

Entfernungen:

Innenstadt: 2 km
Nerotal: 1km
Campus unter den Eichen: 300 Meter
FH Wiesbaden: 2,2 km
Bahnhof Wiesbaden: 3,7 km
Innenstadt Mainz: 12,9 km
Flughafen Rhein Main: 30 km

Flughafen 30 min | Fernbahnhof 10 min | Autobahn 10 min | Bus 1 min 

Die dargestellte Position der Immobilie ist nur eine ungefähre Angabe.