RESERVIERT! Familienglück in Toplage von Weiterstadt-Braunshardt!

64331 Weiterstadt, Doppelhaushälfte zum Kauf

Referenz

Dieses Objekt wurde bereits erfolgreich vermittelt.

Objekt­beschreibung

Beschreibung

Diese schöne Doppelhaushälfte befindet sich seitlich eingebettet in einer überaus gepflegten Spielstraße. Die bevorzugte und ruhige Toplage von Weiterstadt-Braunshardt bietet einer Familie mit Kindern ein ideales Familiendomizil.

Das Doppelhaus wurde 1990 in massiver Bauweise errichtet. Zukunftsorientiert haben die Eigentümer 2012 in eine Photovoltaikanlage investiert.

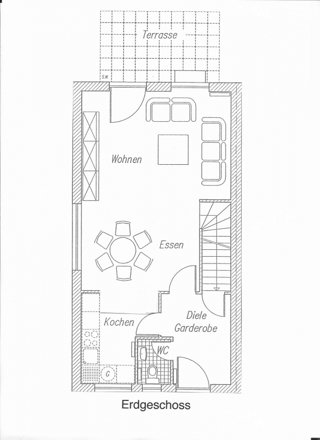
Im Erdgeschoss befinden sich ein großzügiges Wohnzimmer mit Zugang zu der Südterrasse und dem eingewachsenen Garten, eine offene Küche mit angrenzendem Essbereich, eine Diele und ein Gäste WC.

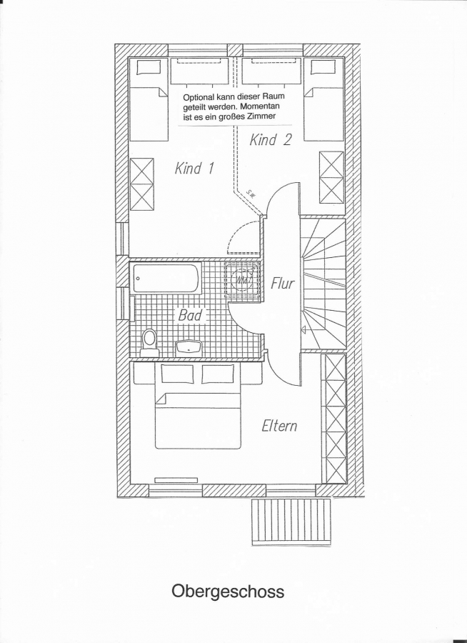
Im Obergeschoss stehen Ihnen zwei geräumige Schlafräume und ein Tageslichtbad zur Verfügung.
Optional kann das eine große Kinderzimmer auch in zwei Räume geteilt werden.

Das helle Dachgeschoss mit einer Wohnfläche von 34,60 Quadratmeter, bietet einen tollen Rückzugsort für die Eltern als Schlafzimmer mit eigenem Duschbad. Weiterhin lässt dieser Raum viele individuelle Gestaltungsmöglichkeiten offen.

Das Haus ist voll unterkellert.

Zwei Außenstellplätze runden dieses attraktive Angebot ab und sind im Verkaufspreis enthalten.

Die Freistellung erfolgt im Juli 2020

Ausstattung

ERDGESCHOSS: 49,7 m²

  • Großzügiges Wohnzimmer mit

Zugang zur überdachten Südterrasse
und dem eingewachsenen Garten

  • Offene Küche mit angenzendem

Essbereich

  • 2008 wurde eine neue moderne

Einbauküche mit allen Geräten
eingebaut.

  • Gäste-WC
  • Diele
  • Bodenbelag: Moderner dunkler

Fliesenboden von 2008.

  • Weiße abschließbare

doppeltverglaste Isolierfenster
in Holz mit Sprossen

  • Rollläden an allen Fenstern
  • Überdachte Südterrasse
  • eingewachsener Garten

mit zwei Geräteschuppen
aus Holz

OBERGESCHOSS: 42,6 m²

  • 2 helle Schlafräume bzw.

Kinderzimmer

  • Klimaanlage im großen

Schlafzimmer bzw. Kinderzimmer

  • Weiß gefliestes Tageslichtbad mit

Badewanne

  • Bodenbelag: Teppichboden
  • Rollläden an allen Fenstern

DACHGESCHOSS: 34,60 m²

  • Großes Dachstudio
  • Helles Duschbad mit Fenster
  • Bodenbelag: Teppichboden

KELLERGESCHOSS: 49,7 m²

  • Waschküche
  • Stauraum
  • Bodenbelag: Fliesen

Alle Erneuerungen auf einen Blick:

2004: Neue Gasheizung
2008:

  • Neue Einbauküche,
  • Moderner Fliesenboden im EG.
  • Neuer Anstrich Fassade

2010: Neue moderne Haustür
2012: Photovoltaikanlage
2013: Wasserfilter
2014: Klimaanlage im Kinderzimmer
2015:

  • Einbau Duschbad im Dachstudio
  • Neue Überdachung auf der Terrasse
  • Klimaanlage im Schlafzimmer

Sonstiges

Wir freuen uns sehr auf eine persönliche Besichtigung mit Ihnen!

Bitte haben Sie Verständnis, dass wir nur vollständig ausgefüllte Anfragen unter Angabe einer Telefonnummer bearbeiten können.

Alle Angaben in diesem Exposé wurden sorgfältig und so vollständig wie möglich gemacht. Gleichwohl kann das Vorhandensein von Fehlern nicht ausgeschlossen werden. Die Angaben in diesem Exposé erfolgen daher ohne jede Gewähr.
Soweit die Grundrissgrafiken
Maßangaben und Einrichtungen enthalten, wird auch für diese jegliche Haftung ausgeschlossen.
Ebenso weisen wir darauf hin, dass die Grundrissgrafiken nicht immer maßstabgetreu sind.
Alle Angaben beruhen auf Aussagen der Eigentümer oder deren Auskunftsbefugten. Für die Richtigkeit der Angaben übernehmen wir keine Gewähr.

Lage

Das Haus befindet sich in einer ruhigen und schönen Lage von Weiterstadt-Braunshardt. Das wunderschöne Rokokoschloss mit seinem Landschaftspark ist in drei Gehminuten zu erreichen.

Weiterstadt-Braunshardt ist ein überaus beliebter Stadtteil vor den Toren Darmstadts und verfügt über eine hervorragende Infrastruktur.

Ein Super- und Getränkemarkt, sowie eine Metzgerei, Bäckereien, Apotheke und mehrere kleine Restaurants sind fußläufig zu erreichen.

Braunshardt verfügt über drei Kindertagesstätten, eine Grundschule,
einen Sportverein mit Sporthalle und eigenem Sportplatz sowie über ein Hallenbad.

Die Buslinien WE 1 und WE 2 sorgen für reibungslose Anbindung in die umliegenden Ortschaften.

Die schnelle Erreichbarkeit der Autobahnen in alle Richtungen, sowie die Nähe zum Flughafen Rhein Main, runden diese attraktive Wohnlage ab.
Vom S-Bahn Anschluss in Weiterstadt erreicht man in wenigen Fahrminuten den Frankfurter Flughafen und die Innenstädte von Darmstadt, Mainz, Wiesbaden und Frankfurt.

Entfernungen:
Darmstadt : 6 km
Groß Gerau: 9,5 km
Flughafen Rhein Main: 15 km
Rüsselsheim / Opel: 24 km
Frankfurt: 27 km
Wiesbaden: 39 km

Die dargestellte Position der Immobilie ist nur eine ungefähre Angabe.